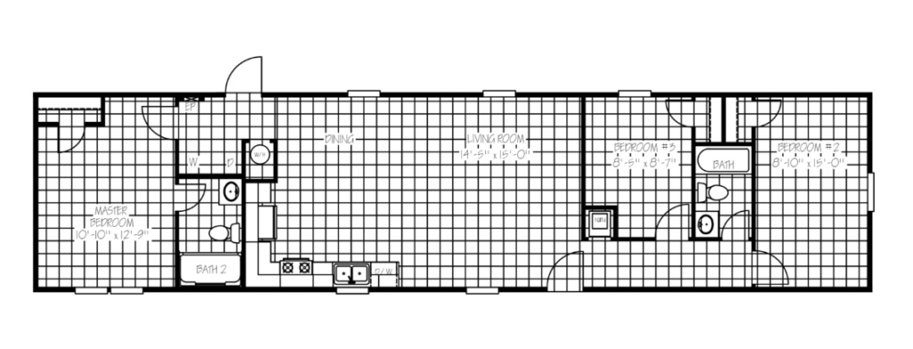
The Tropic built by Jessup Housing
Size 16 X 66′
Features
▪️ Open concept floor plan
▪️ 2″ Window blinds throughout
▪️ Fiberglass showers
▪️ Steel front door
▪️ Hardwood cabinet doors
Delivery, setup, ac, skirt, & steps are included in the price.
*Some home images contain additional upgrades not included in the base price. Please note that prices, floor plans, specifications, dimensions, features, materials, and availability shown on this website are subject to change without notice.









