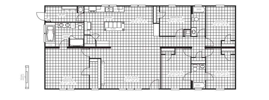
The Royal built by Jessup Housing
Bedrooms 5
Bathrooms 3
Sq Feet 2,040
Size 32 x 68′
Features
▪️Open floor plan
▪️Wind zone 2: Built to resist higher wind speeds
▪️Spacious master bedroom with walk-in closet
▪️60″ inch tile shower
▪️Decorative ceiling beams
▪️Range, refrigerator, & dishwasher
Delivery, setup, ac, skirt, & steps are included in the price.
*Some home images contain additional upgrades not included in the base price. Please note that floor plans, specifications, dimensions, features, materials, and availability shown on this website are subject to change without notice.













